Alle Projekte anzeigen

Kindertagesstätte „Kinderinsel“ Freiberg, Freistaat Sachsen

Allgemeines

LeistungsgegenstandNeubau einer Kindertagesstätte mit Kinderkrippen- und Kindergartenplätzen sowie Bewegungshalle
LeistungsbildObjektplanung Gebäude und Freianlagen, Tragwerksplanung, Besondere Leistungen
Leistungsphasen2-9, 2-9,1-6
AuftraggeberUniversitätsstadt Freiberg

Besonderheiten     

  • offenes Betreuungskonzept ohne klare Gruppenzuordnung
  • Modulares Raum– und Funktionsprogramm für Kitagruppen
  • energieoptimierte Gebäudehüllkonstruktion
  • Energieerzeugung mit regenerativen Energien
Eingang Straßenseite
Eingang Straßenseite
Baukörpermodell (Visualisierung)
Baukörpermodell (Visualisierung)
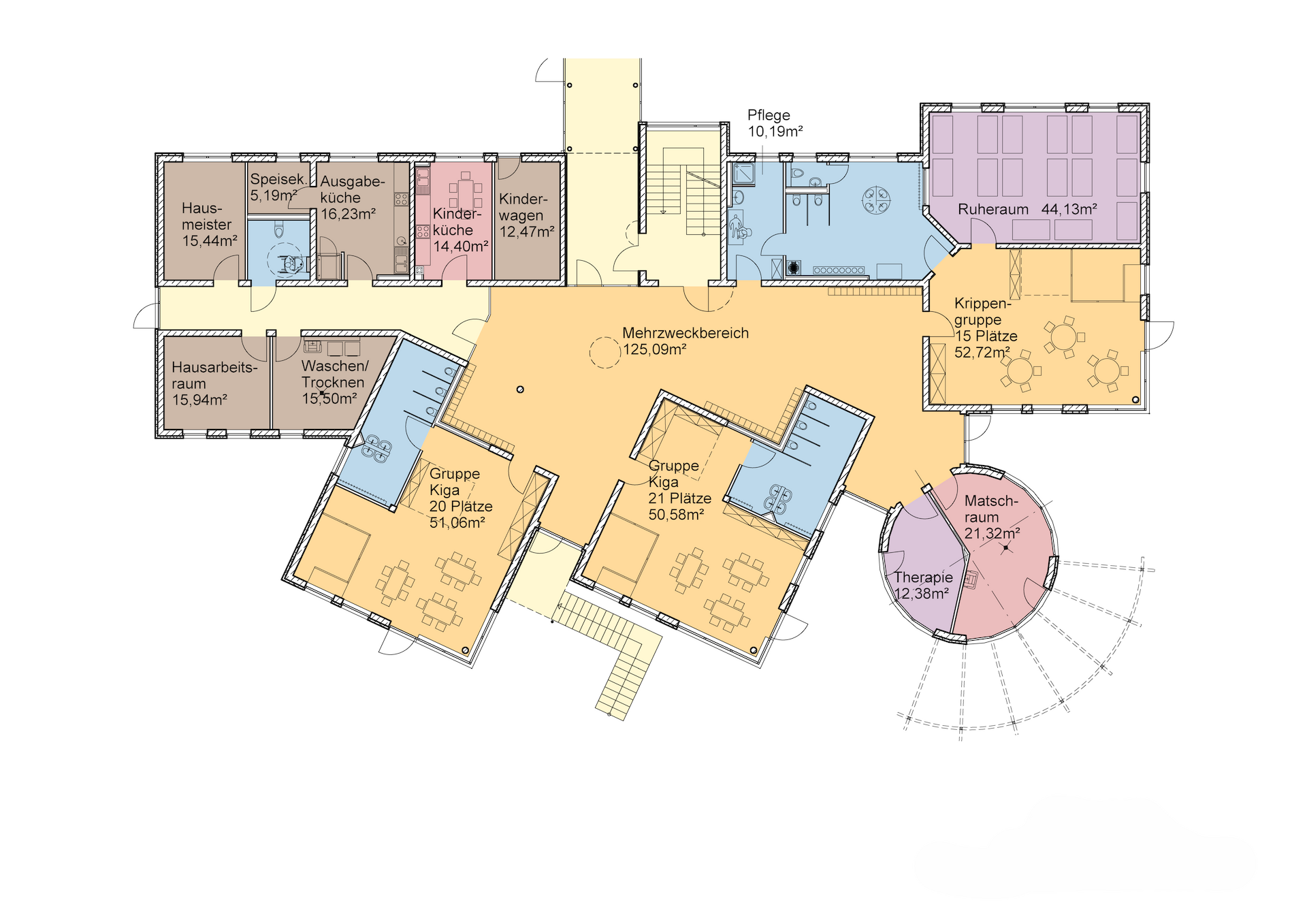
Funktionsgrundriss Erdgeschoss
Funktionsgrundriss Erdgeschoss
Eingang Innenhof
Eingang Innenhof
Matschraum mit Außenbereich
Matschraum mit Außenbereich
Gruppenraum
Gruppenraum

Zum Seitenanfang